# 家族を守る家
「今」大切にしたい暮らし方
「今」大切にしたい暮らし方
新しい生活スタイルに
外出時にはマスクを装着し、
人との距離をとり、食事は交互の席で。
「当たり前」になっていく
新しい生活スタイルをストレスなく、
安心に過ごせる場所として、
#家族を守る家 をご提案します。
"自然と守られる"工夫を
「帰宅したら手洗いうがい」の習慣が自然と身に付き、ウイルスや菌を家に持ち込まない動線。いろんなところを触りたがる赤ちゃんにとっても安心な、壁や床の仕様。子どもを守る工夫を、あらゆる場面で。
清潔な暮らしを負担なく
たくさん使う場所こそ、いつも清潔に保ちたい。LIXILグループのアイフルホームだから実現できる「お手入れしやすい」「お掃除しやすい」をさらに追及したご提案が、家族の健康を守るママの負担を大幅軽減します。
Movie
Plan
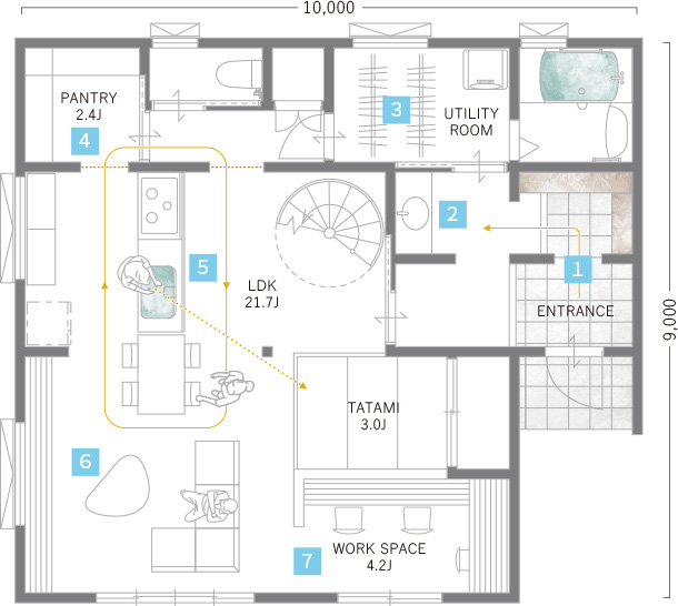
1st FLOOR
for our Family
2nd FLOOR
帰宅後、外で使ったおもちゃやコートは土間収納へ。​部屋の中にウイルスや細菌を持ち込みません。​さらに、花粉などの環境アレルゲンを抑える玄関タイルと壁が、家族を守ります。​
玄関から、リビングへの動線上に洗面台を設置。子どもの手洗い習慣も自然と身につきます。
汚れた服や靴下は玄関から直接洗面所の洗濯機へ。​リビングを通らず、汚れを部屋に持ち込まない安心の動線です。
毎日の買い物から計画的な買い物に。​まとめ買いしてもストックしておける広さたっぷりのパントリーです。​
手を近づけるとセンサーが感知し、吐水も止水も自動で行うタッチレス水栓。​直接手で触れないから、清潔に保つことができます。​
アレル物質やウイルスの働きを低減する抗菌仕様の壁や床。​
感染リスクを抑え、家族の健康を守ります。​
在宅勤務時のテレワークスペースに。​リビングも見渡せ、集中したいときはロールカーテンで仕切ることもできます。​
天気や時間を気にせず、洗濯物を干せるファミリースペース。バルコニーのそばなら、急な雨の際にもさっと部屋干しに切り替えられます。​
広々としたバルコニーは、お茶や読書を楽しめる場所に。外に出られない日でもお子さまを安心して遊ばせることもできます。
for our Family
1st FLOOR
帰宅後、外で使ったおもちゃやコートは土間収納へ。​部屋の中にウイルスや細菌を持ち込みません。​さらに、花粉などの環境アレルゲンを抑える玄関タイルと壁が、家族を守ります。​
玄関から、リビングへの動線上に洗面台を設置。子どもの手洗い習慣も自然と身につきます。
汚れた服や靴下は玄関から直接洗面所の洗濯機へ。​リビングを通らず、汚れを部屋に持ち込まない安心の動線です。
毎日の買い物から計画的な買い物に。​まとめ買いしてもストックしておける広さたっぷりのパントリーです。​
手を近づけるとセンサーが感知し、吐水も止水も自動で行うタッチレス水栓。​直接手で触れないから、清潔に保つことができます。​
アレル物質やウイルスの働きを低減する抗菌仕様の壁や床。​
感染リスクを抑え、家族の健康を守ります。​
在宅勤務時のテレワークスペースに。​リビングも見渡せ、集中したいときはロールカーテンで仕切ることもできます。​
2nd FLOOR
天気や時間を気にせず、洗濯物を干せるファミリースペース。バルコニーのそばなら、急な雨の際にもさっと部屋干しに切り替えられます。​
広々としたバルコニーは、お茶や読書を楽しめる場所に。外に出られない日でもお子さまを安心して遊ばせることもできます。
copyright ©株式会社LIXIL住宅研究所
All Rights Reserved.
アイフルホームはLIXIL住宅研究所が
運営する住宅FCです。